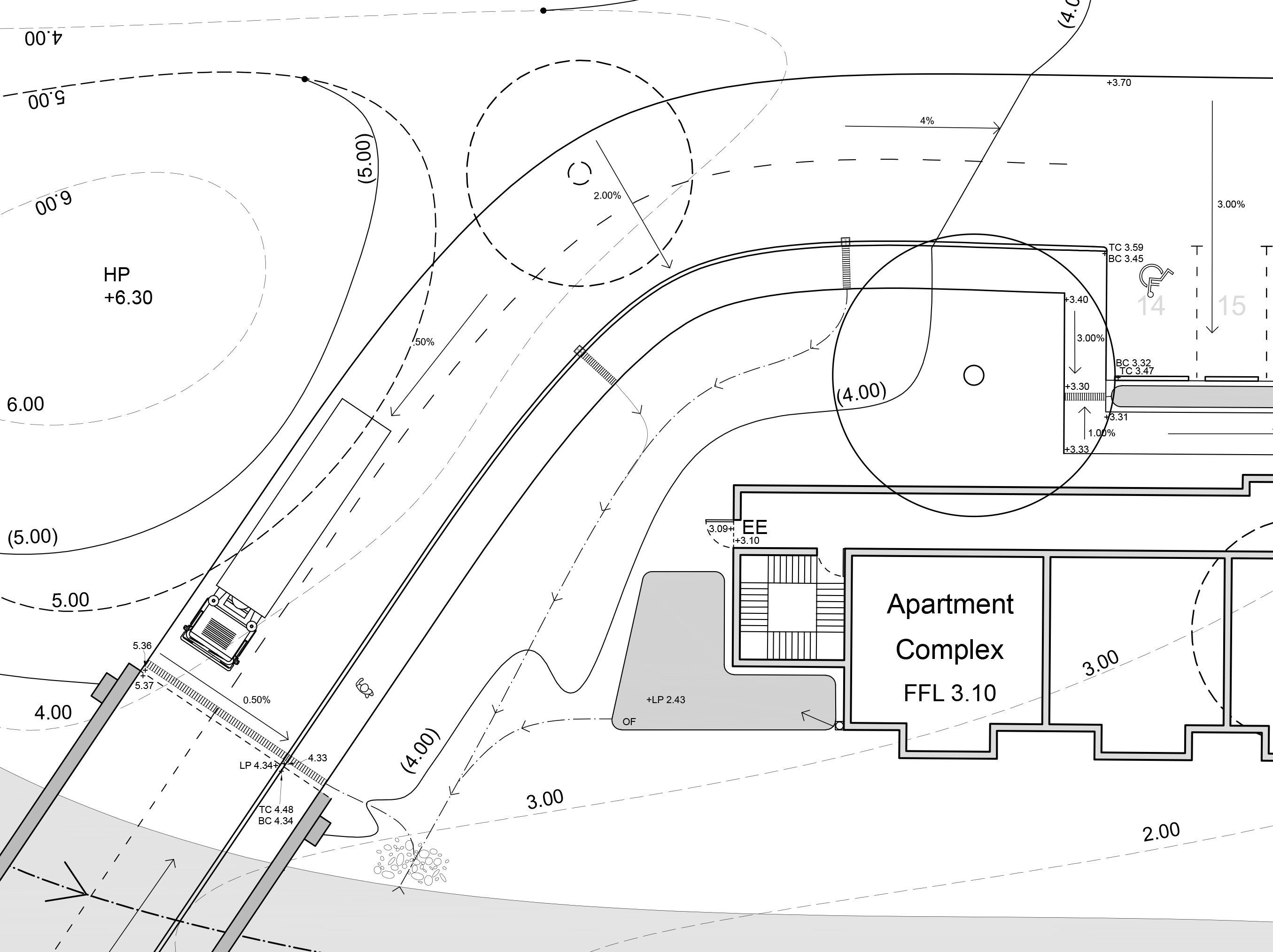
Grading + Drainage
This plan and resulting model was an exercise in learning the methods and calculations for grading and drainage in detailed landscape design and construction.
landscape technologies, spring 2017
Daniel Roehr
Daniel Roehr






